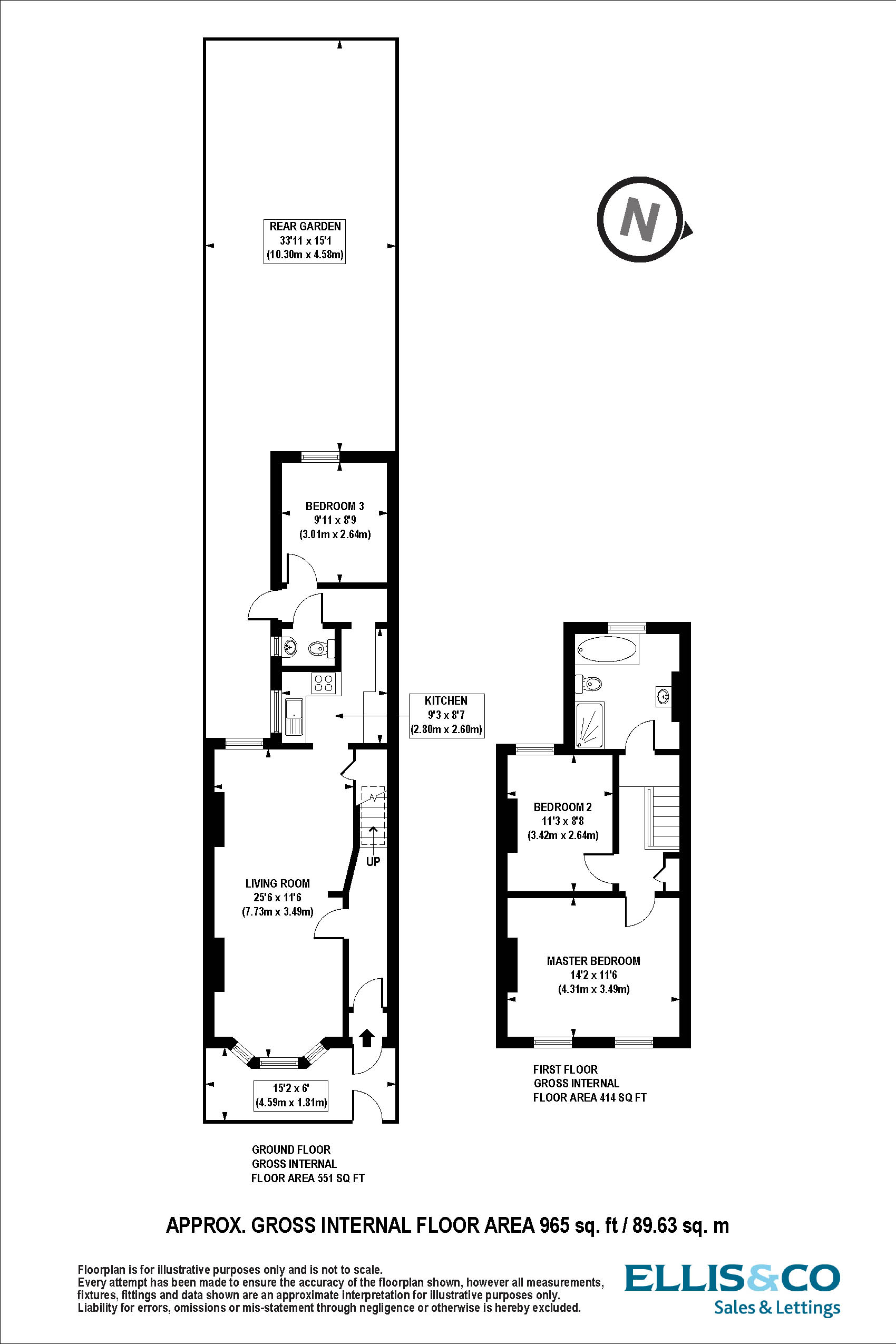
- Newly refurbished throughout
- Three double bedrooms
- Separate fitted kitchen
- Private rear garden
- Downstairs WC
- First floor family bathroom
- Popular residential location
- Close to Downhills Park
- Excellent transport links including Turnpike Lane Underground and Bruce Grove Overground
- Easy access to local shops and amenities
- Council Tax: Band D and EPC Rating: D
The property has been newly refurbished throughout, creating a fresh and modern interior. On the ground floor, there is a spacious double reception room providing excellent space for both living and dining, ideal for entertaining or family life. To the rear, a separate fitted kitchen offers good storage and direct access to the private rear garden. The ground floor also benefits from a third bedroom, offering flexible accommodation that could be used as a guest room, home office or additional bedroom, along with the added convenience of a downstairs WC. Upstairs, the property comprises two well-proportioned bedrooms and a contemporary family bathroom, creating a well-balanced layout suited to a variety of tenants. Clonmell Road is well located in the heart of Tottenham, an area that has seen significant growth and regeneration in recent years. Residents benefit from a wide range of local amenities including supermarkets, independent retailers, cafés, restaurants and convenience stores, all within easy reach, as well as the vibrant Tottenham High Road offering further shopping and dining options. The property is ideally positioned for access to green open spaces, including the ever-popular Downhills Park, known for its open fields, café and community atmosphere. Tottenham Marshes and the Lee Valley Regional Park are also nearby, providing extensive green space, walking routes and outdoor leisure facilities. Transport links are excellent, with nearby stations including Turnpike Lane Underground Station (Piccadilly Line) and Bruce Grove Overground Station, offering convenient routes into Central London and connections across the city. Numerous bus routes also serve the area, providing easy access to Wood Green, Seven Sisters and surrounding neighbourhoods. Early viewing is highly recommended.
Struggling to find a property? Get in touch and we'll help you find your ideal property.