- Available quickly s - 2 - refs & Checks.
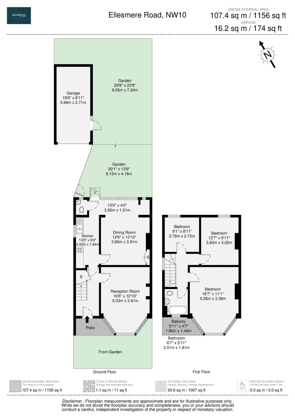
- Edwardian end terrace house.
- 3 double bedrooms.
- 2 Reception room.
- Brand new Kitchen.
- Modern bathroom.
- New decoration throughout.
- New carpets & renovated wood floors.
- 3 minutes to Zone 3 tube.
- Garage in detached block.
- Viewings recommended.
Available to let UNFURNISHED and ready for immediate occupation is this recently refurbished Edwardian end terrace family home. Boasting a new fitted kitchen with appliances, two large reception rooms with renovated original floors, separate ground floor cloakroom and direct access to the private rear garden and garage in detached block. On the first floor there are three double bedrooms and modern bathroom. Freshly redecorated and new carpets, this property is ready to go and viewings are highly recommended via the Sole Managing Agents and keyholders. Tenancy Deposit £3288.45. Brent Council Tax Band E - £2607.18 pa.
Struggling to find a property? Get in touch and we'll help you find your ideal property.