- Just renovated throughout.
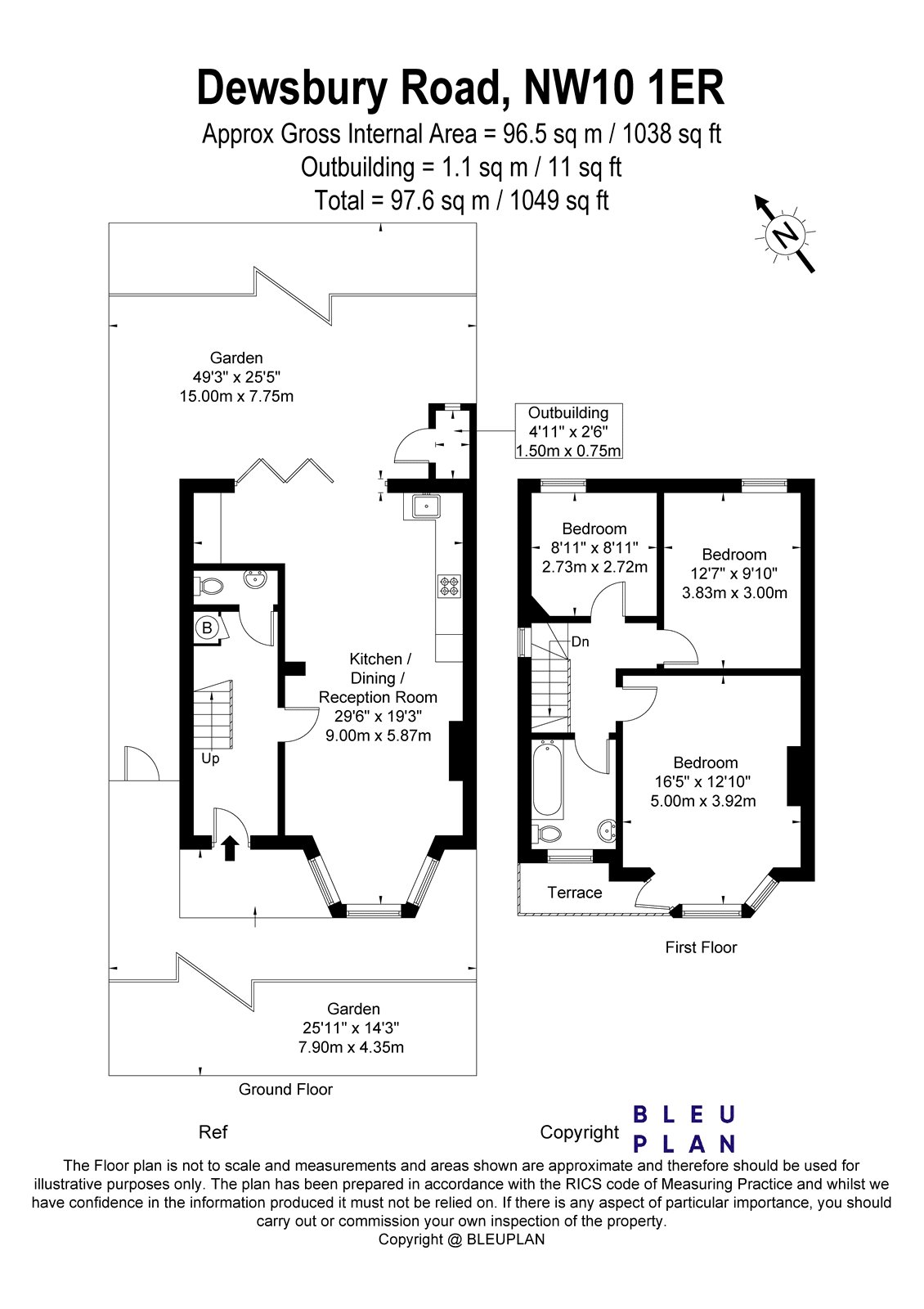
- 3 double bedrooms.
- Stunning through Reception room.
- Luxury Kitchen.
- Luxury Bathroom.
- 6 minutes walk of Dollis Hill Tube
- Unfurnished tenancy.
- Council Tax Band E - Brent.
- Tenancy deposit £3250.00.
Available in late May on an unfurnished basis is this end terrace Edwardian home having been renovated in 2023 and now extended and boasting a 29' x 19' reception room with bi-fold doors to the rear garden and incorporating luxury kitchen and separate utility area, luxury bathroom, 3 double bedrooms and guest cloaks w.c. The property is double glazed throughout and an overhaul of the central heating and hot water system was completed at the time of renovation. An internal inspection is highly recommended to fully appreciate and can be arranged via the Sole managing Agents but in the first instance please email your full details via the portal this property is being viewed on. Telephone enquiries are not being taken at this time. Brent Council Tax - Band E - £2732.00 - pa. Tenancy deposit - £3425.00.
Struggling to find a property? Get in touch and we'll help you find your ideal property.