Myddleton Road, London, N22

£350,000 | SSTC

1 bedroom Flat Sold STC

or call 020 8881 5288
Property Description

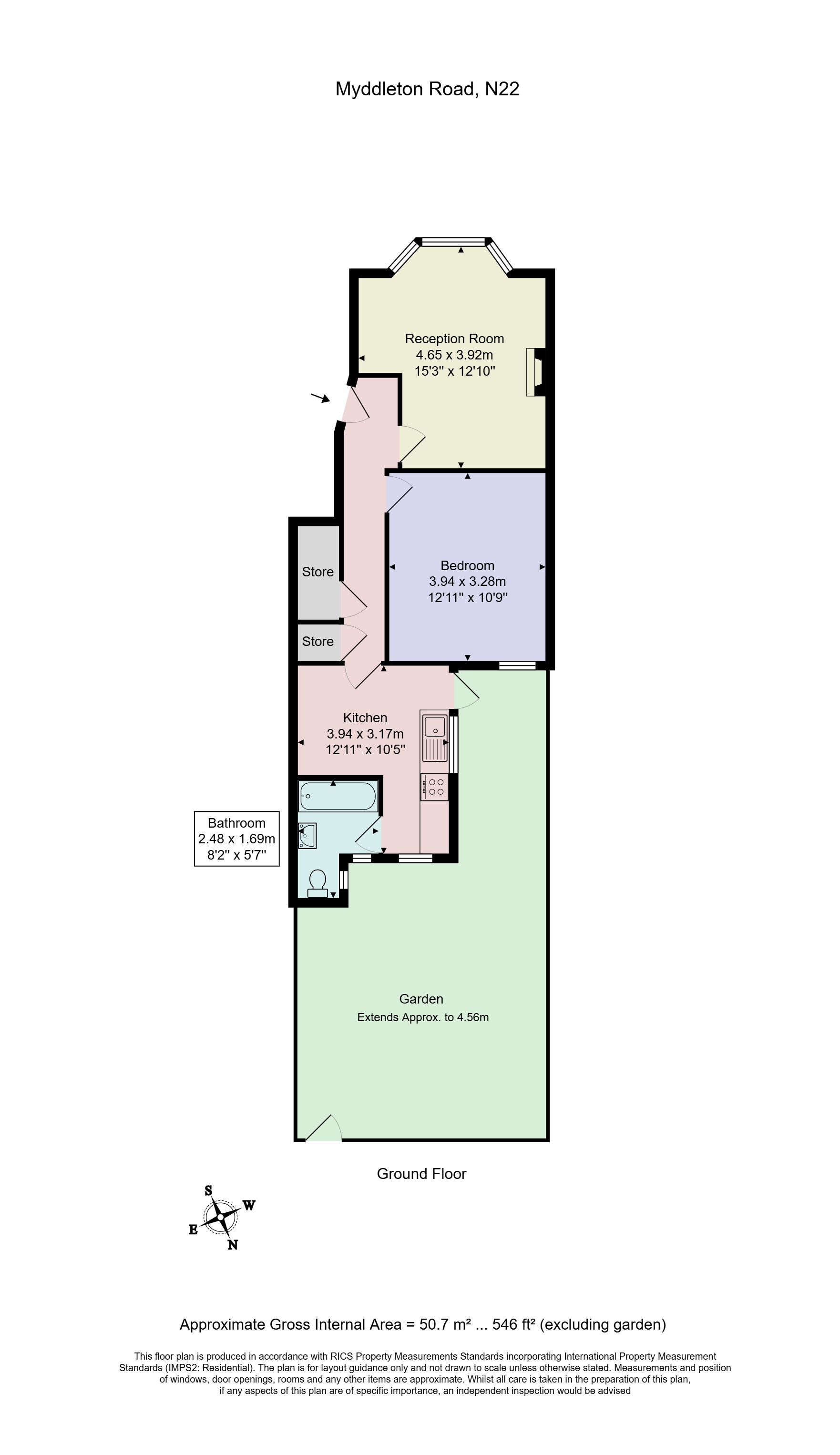
A ONE BEDROOM GROUND FLOOR FLAT WITH OWN SMALL GARDEN AT REAR. The property benefits from a good size lounge, a double bedroom, a kitchen diner, a family bathroom and own garden at rear. Situated just off the High Road Palmers Green with all its local shops and restaurants the property is within walking distance to both Bowes Park Overground and Bounds Green Underground. Sold on a CHAIN FREE BASIS with SHARE OF FREEHOLD. Council tax band C


Additional Information
Tenure:
Share of Freehold
Council Tax Band:
C

Mortgage calculator

Calculate Your Stamp Duty
£
Results
Stamp Duty To Pay:
Effective Rate:
Tax Band % Taxable Sum Tax

Myddleton Road, London, N22

Struggling to find a property? Get in touch and we'll help you find your ideal property.