Beaconsfield Road, London, N15

Offers in excess of £425,000 | Available

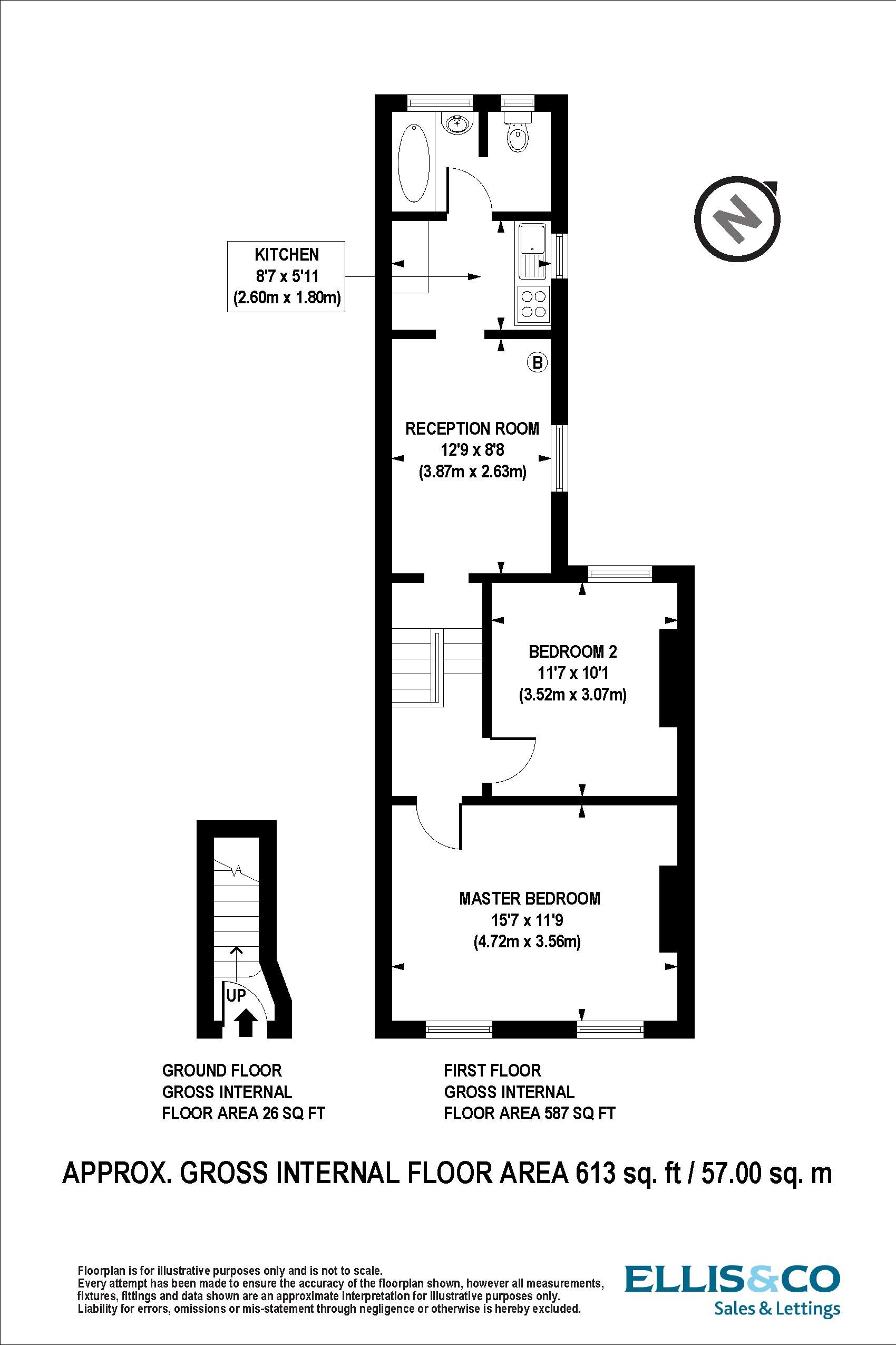
2 bedroom Flat For Sale

or call 020 8809 4826
Property Description

- First-floor, two-bedroom apartment - One reception room and one bathroom - Versatile second bedroom — suitable as a guest room or home office - Straightforward, practical layout for everyday living Set on the first floor, this two-bedroom home offers a clear, easy-to-use layout: a dedicated reception room for everyday living and dining, two well-separated bedrooms to keep rest and relaxation private, and a neatly arranged bathroom to complete the plan. The second bedroom adds flexibility — ideal as a guest room, study or nursery as needs change — while the reception room provides the central social space for mealtimes and unwinding. With its simple, functional arrangement, the flat makes an excellent blank canvas for furnishing and personal style, delivering straightforward, low-maintenance living in a well-connected North London setting.


Additional Information
Tenure:
Leasehold
Lease Years Remaining:
141
Council Tax Band:
D

Mortgage calculator

Calculate Your Stamp Duty
£
Results
Stamp Duty To Pay:
Effective Rate:
Tax Band % Taxable Sum Tax

Beaconsfield Road, London, N15

Struggling to find a property? Get in touch and we'll help you find your ideal property.