Standout Features
- EXCELLENT LOCATION
- 21FT REAR TERRACE
- WOODEN FLOORS
- CHAIN FREE
- MODERN KITCHEN
- LENGTH OF LEASE 119 YEARS REMAINING
- SERVICE CHARGE £1400.00 PA
- GROUND RENT £300.00 PA
- COUNCIL TAX BAND C
Property Description
MUST BE VIEWED. This well presented spacious 2 double bedroom 1st floor apartment ideally situated in the heart of Golders Green Road. Golders Green station, transport links and local shopping facilities are all within easy reach. Benefits include, wooden floors, access to a 21ft terrace, modern bathroom, double glazing, gas central heating long lease and also sold no with chain. To really appreciate the potential and location an internal viewing is highly recommended via the vendors sole agent Ellis and Co.
Additional Information
Tenure:
Leasehold
Lease Years Remaining:
117
Ground Rent:
£300 per year
Service Charge:
£1,400 per year
Council Tax Band:
C
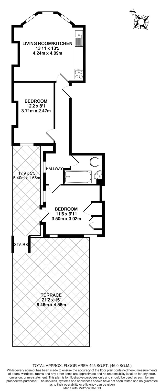
Rooms
Communal Entrance
Stairs leading to first floor landing
Leading to main entranceEntrance Hall
Wooden floors and door to;-Reception/Kitchen
Open plan to kitchen.
Kitchen modern fitted units.4.24m x 4.1m
Bedroom 2
Wooden floors.3.7m x 2.46m
Bathroom
Modern Three Piece suite.Bedroom 1
Fitted wardrobes
Doors to terrace-;3.5m x 3.02m
Terrace
With astro turf.6.45m x 4.57m
Mortgage calculator
Calculate Your Stamp Duty
Results
Stamp Duty To Pay:
Effective Rate:
| Tax Band | % | Taxable Sum | Tax |
|---|
Golders Green Road,
London,
NW11
Struggling to find a property? Get in touch and we'll help you find your ideal property.