Meander Road, Millbrook Park, Mill Hill, London, NW7

£550,000 | Available

2 bedroom Flat For Sale

or call 020 8959 3281
Standout Features

Property Description

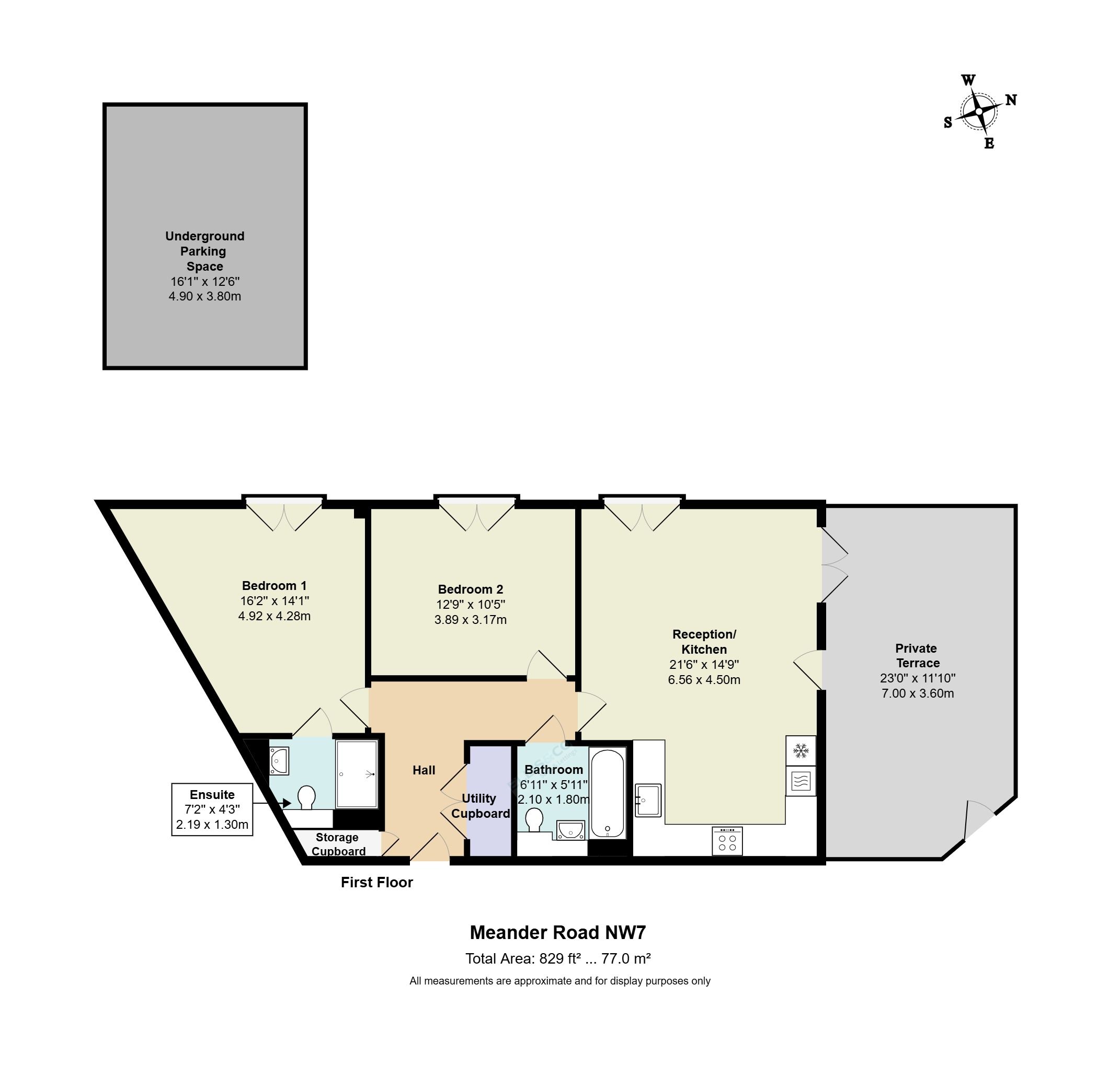
The property comprises a reception room open plan to quality fitted kitchen with integrated appliances, two double bedrooms, quality bathroom and en-suite shower room. Benefits include concierge, media room, video entry phone system, herringbone engineered wood flooring, underfloor heating, air filtration system, built in utility and storage cupboards, private terrace overlooking attractive communal gardens, allocated parking space in secure gated car park and remainder of NHBC warranty. The property is Leasehold with approximately 993 years remaining on the lease (999 years from 31/01/2020) with a Peppercorn ground rent and a block service charge of £4089.16 per annum and an estate charge of £298.00 per annum, totalling £4387.00 per annum. For further details and to arrange a viewing please contact Ellis and Co Estate Agents.


Additional Information
Tenure:
Leasehold
Lease Years Remaining:
992
Service Charge:
£4,387 per year
Council Tax Band:
E

Rooms
Communal Entrance
Video entry phone, lift and stairs to all floors.
Entrance Hall

Utility Cupboard
Plumbed for washing machine.
Reception/Kitchen
Open plan quality fitted kitchen with integrated appliances, herringbone engineered wood flooring, doors to private terrace.
6.55m x 4.5m
Private Terrace
Gated access on to landscaped communal gardens.
7m x 3.6m
Bedroom One
Door to en-suite shower room.
4.93m x 4.3m
En-Suite Shower Room

2.18m x 1.3m
Bedroom Two

3.89m x 3.18m
Bathroom

2.1m x 1.8m
Communal Gardens

Parking
Allocated parking space in secure residents' car park.
Leasehold
The property is Leasehold with approximately 993 years remaining on the lease (999 years from 31/01/2020) with a peppercorn ground rent and a block service charge of £4089.16 per annum and an estate charge of £298.00 per annum, totalling £4387.00 per annum. Should you proceed with the purchase of this property these details must be verified by your solicitor.
Council Tax
Band E

Mortgage calculator

Calculate Your Stamp Duty
£
Results
Stamp Duty To Pay:
Effective Rate:
Tax Band % Taxable Sum Tax

Meander Road, Millbrook Park, Mill Hill, London, NW7

Struggling to find a property? Get in touch and we'll help you find your ideal property.