Berkeley Avenue, Greenford, UB6

£475,000 | Available

2 bedroom House For Sale

or call 020 8900 1919
Standout Features

Property Description

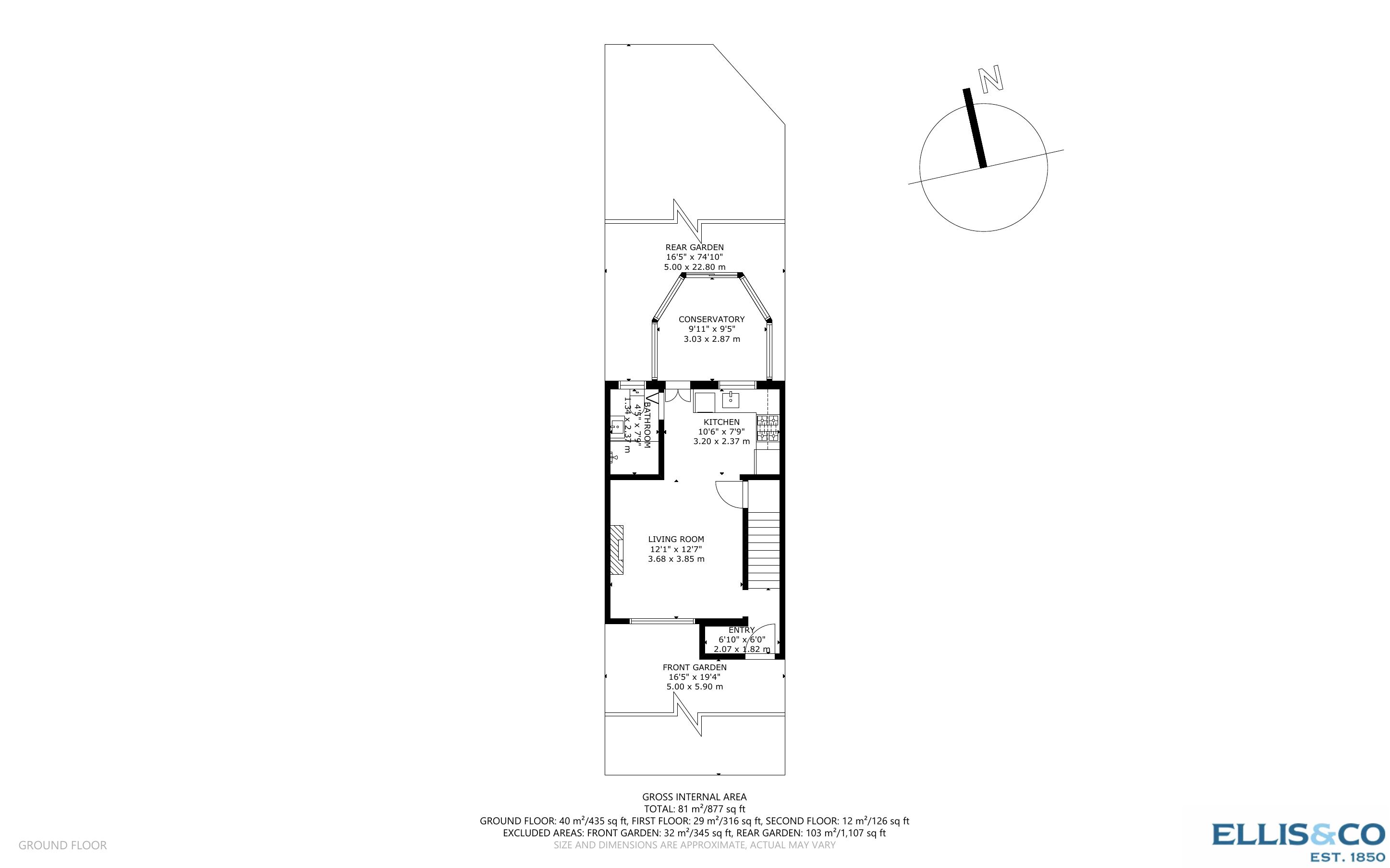
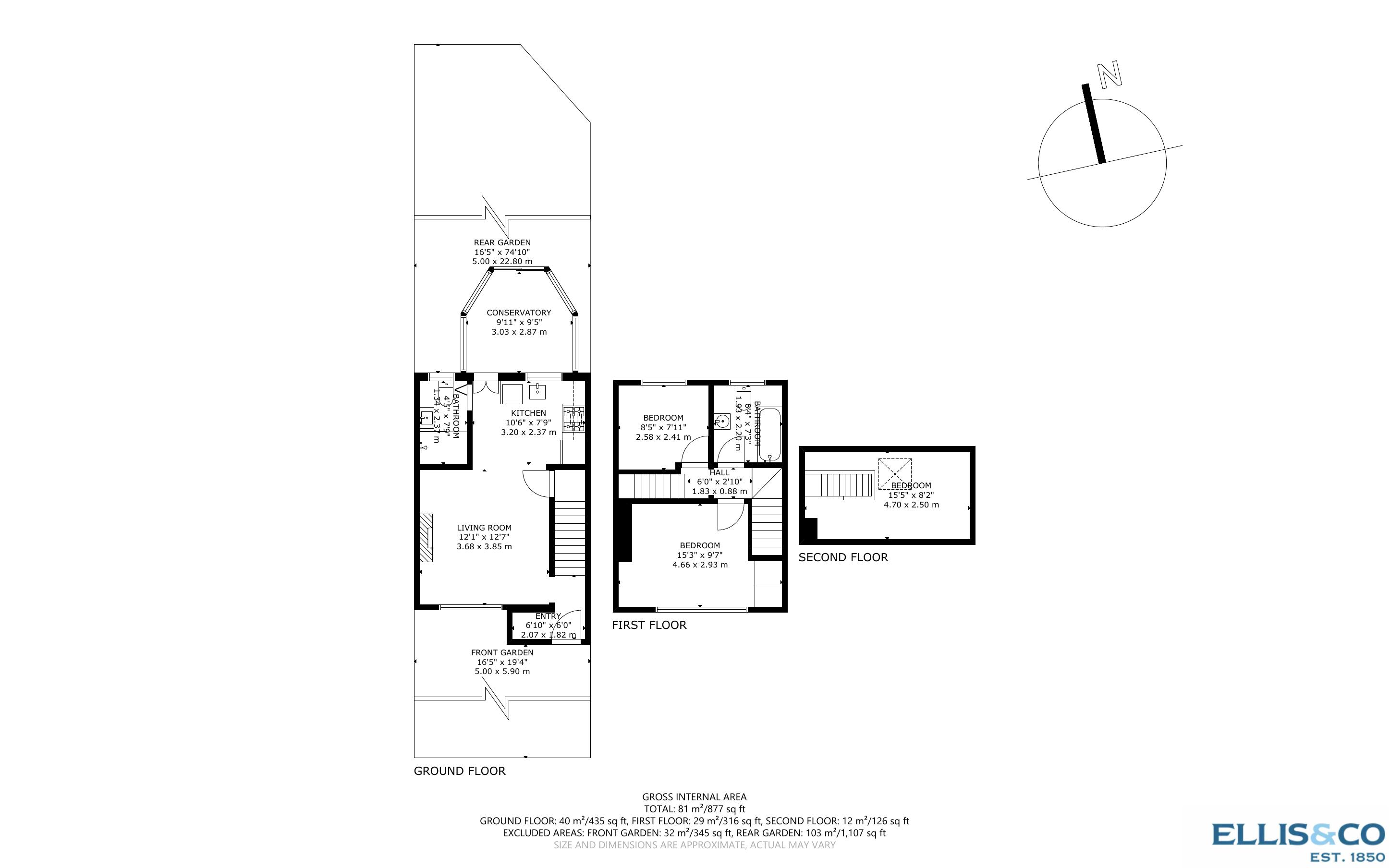
Measuing in at 877 square feet, Ellis & Co are pleased to offer this freehold house for sale, located on a residential road in of Greenford. Situated over 3 floors, this mid terraced property benefits from a good sized North facing rear garden which enjoys plenty of natural sunlight, front driveway for off street parking, South facing living room, separate kitchen, 2 bedrooms, 2 bathrooms, office space in the loft, separate kitchen and gas combination boiler. The property offers good scope for extension (STPP). Located within walking distance to Greenford Station (Central Line) and Sudbury Hill Station (Piccadilly Line), as well as to the variety of shops and outlets in Westway Cross Retail Park. There are a number of schools close by that are rated Outstanding by Ofsted, including William Perkin Church of England High School and St George's Primary Catholic Voluntary Academy. Early viewings are highly recommended.


Additional Information
Tenure:
Freehold
Council Tax Band:
D

Mortgage calculator

Calculate Your Stamp Duty
£
Results
Stamp Duty To Pay:
Effective Rate:
Tax Band % Taxable Sum Tax

Berkeley Avenue, Greenford, UB6

Struggling to find a property? Get in touch and we'll help you find your ideal property.