Rutland Road, Southall, UB1

Guide Price £475,000 | Available

2 bedroom House For Sale

or call 020 8900 1919
Standout Features

Property Description

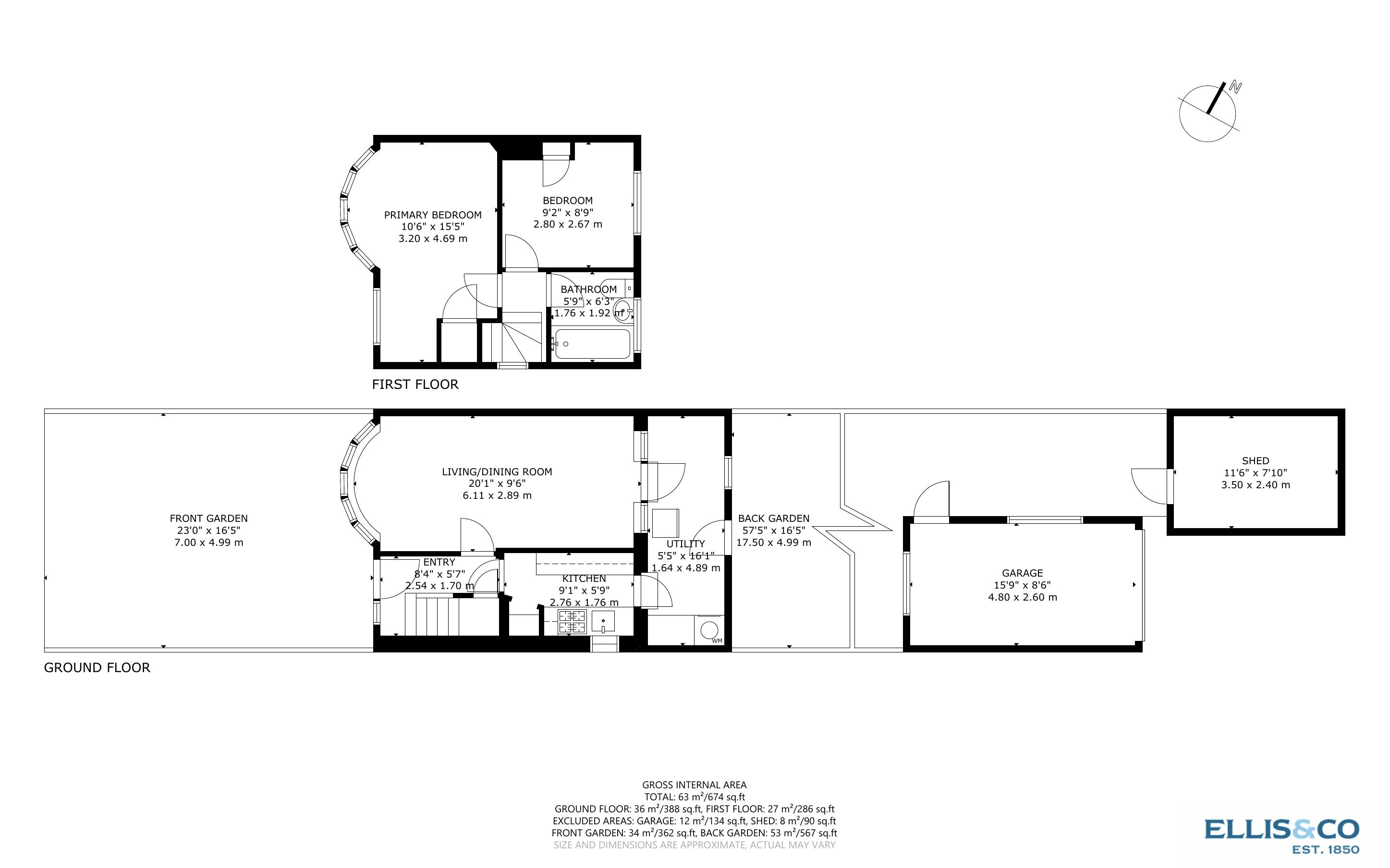
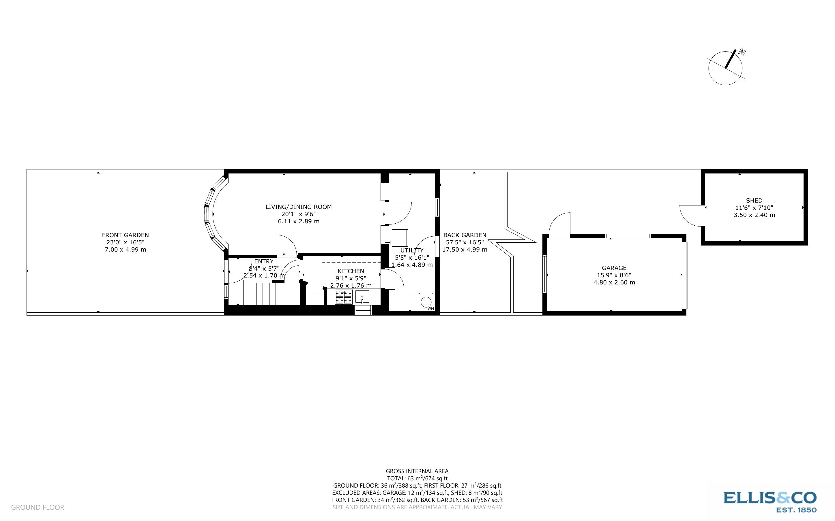
Measuing in at 674 square feet, Ellis & Co are pleased to offer this freehold house for sale, located on a residential area of Southall, UB1. This end of terrace property benefits from a South-West facing rear garden which enjoys plenty of natural sunlight, separate kitchen, double glazing throughout, 2 good sized bedrooms, free on street parking and a front garden with potential to convert into driveway (STPP). Located close to abundant bus links, allowing easy access to the entirety of West London and also easy commute to Southall Station (Elizabeth Line), Northolt Station (Central Line) and the amenities on Southall Broadway. In close proximity to a number of highly regarded schools, including Lady Margaret Primary School. The property is in good condition throughout and early viewings are highly recommended.


Additional Information
Tenure:
Freehold
Council Tax Band:
C

Mortgage calculator

Calculate Your Stamp Duty
£
Results
Stamp Duty To Pay:
Effective Rate:
Tax Band % Taxable Sum Tax

Rutland Road, Southall, UB1

Struggling to find a property? Get in touch and we'll help you find your ideal property.