Standout Features
- CUL DE SAC LOCATION
- EXTENDED SEMI DETACHED
- OFF STREET PARKING
- CHAIN FREE
- GROUND FLOOR "BED" ROOM WITH EN-SUITE
- VERY WELL PRESENTED
- THREE/FOUR BEDROOMS
- TWO RECEPTION ROOMS
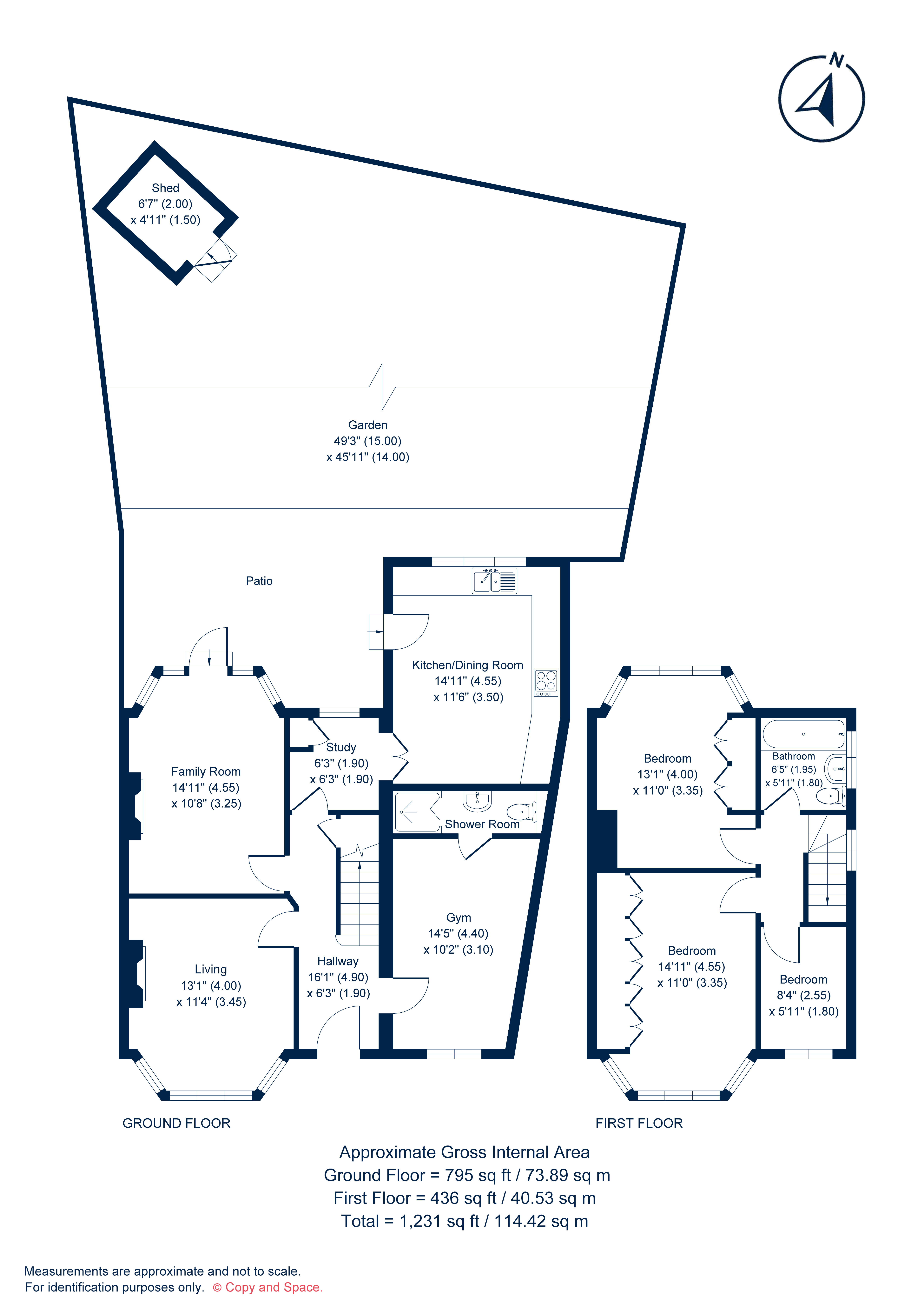
Property Description
Situated in this pleasant cul-de-sac and within walking distance of Canons Park station and schools to include Whitchurch Primary School & Nursery, Avanti House School and Stanburn Primary School is this very well presented extended three/four bedroom semi detached family house. Internally, there are three bedrooms and the family bathroom on the first floor whilst on the ground floor you will find the two reception rooms, a study area, the extended kitchen and a room that can be used as the fourth bedroom as it has an en-suite shower room. Externally there is ample parking to the front and a well presented garden to the rear.
Additional Information
Tenure:
Freehold
Council Tax Band:
E
Mortgage calculator
Calculate Your Stamp Duty
Results
Stamp Duty To Pay:
Effective Rate:
| Tax Band | % | Taxable Sum | Tax |
|---|
Home Mead,
Stanmore,
HA7
Struggling to find a property? Get in touch and we'll help you find your ideal property.