- 3 BEDROOM SEMI DETACHED
- 3 RECEPTION ROOMS
- 2 BATHROOMS
- UTILITY ROOM
- GARDEN
- OFF STREET PARKING
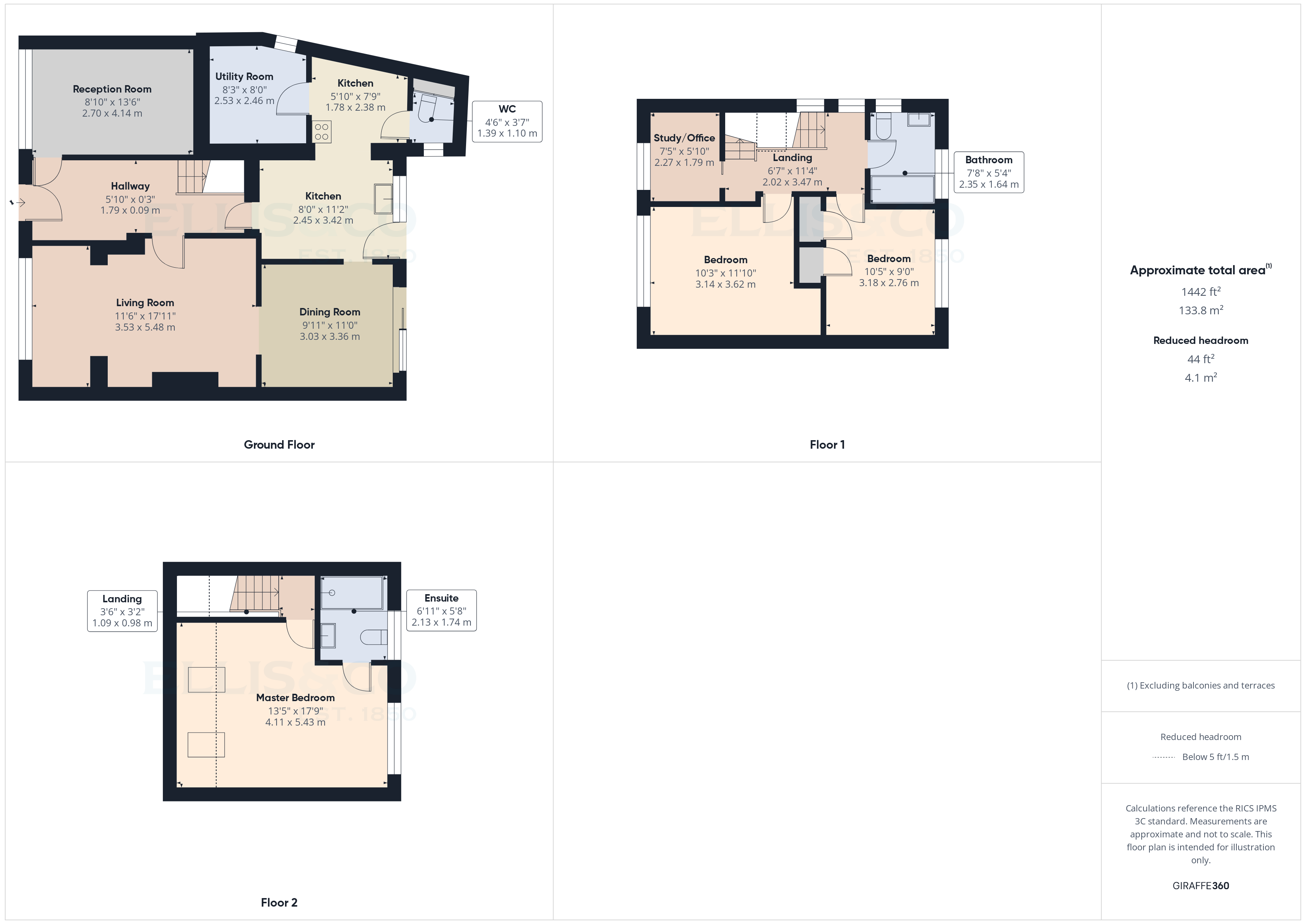
Extended 3 bedroom semi detached family home in popular residential area of Tonbridge within walking distance to Woodlands Primary and local secondary school, play areas and woodland trail. The property comprises a hallway leading to a large lounge, dining room and a fully fitted, modern kitchen. There is an additional reception room, a utility room and downstairs cloakroom. The master bedroom with ensuite shower room is located on the upper floor, and there are two further double bedrooms and a family bathroom, and an office/study room on the first floor. Outside the property at the front there is a paved drive with off street parking. To the rear of the property there is a lovely garden, laid to lawn with a paved patio area. Viewing recommended. COUNCIL TAX BAND E - £2,879.76 (As of 01.04.2025) FURTHER INFORMATION ON THIS PROPERTY CAN BE FOUND VIA THE ATTACHED BROCHURE/PARTICULARS.
| Tax Band | % | Taxable Sum | Tax | 
|---|
Struggling to find a property? Get in touch and we'll help you find your ideal property.
 
                                         
                            