Jarrow Road, London, N17

£600,000 | Available

4 bedroom House For Sale

or call 020 8809 4826
Property Description

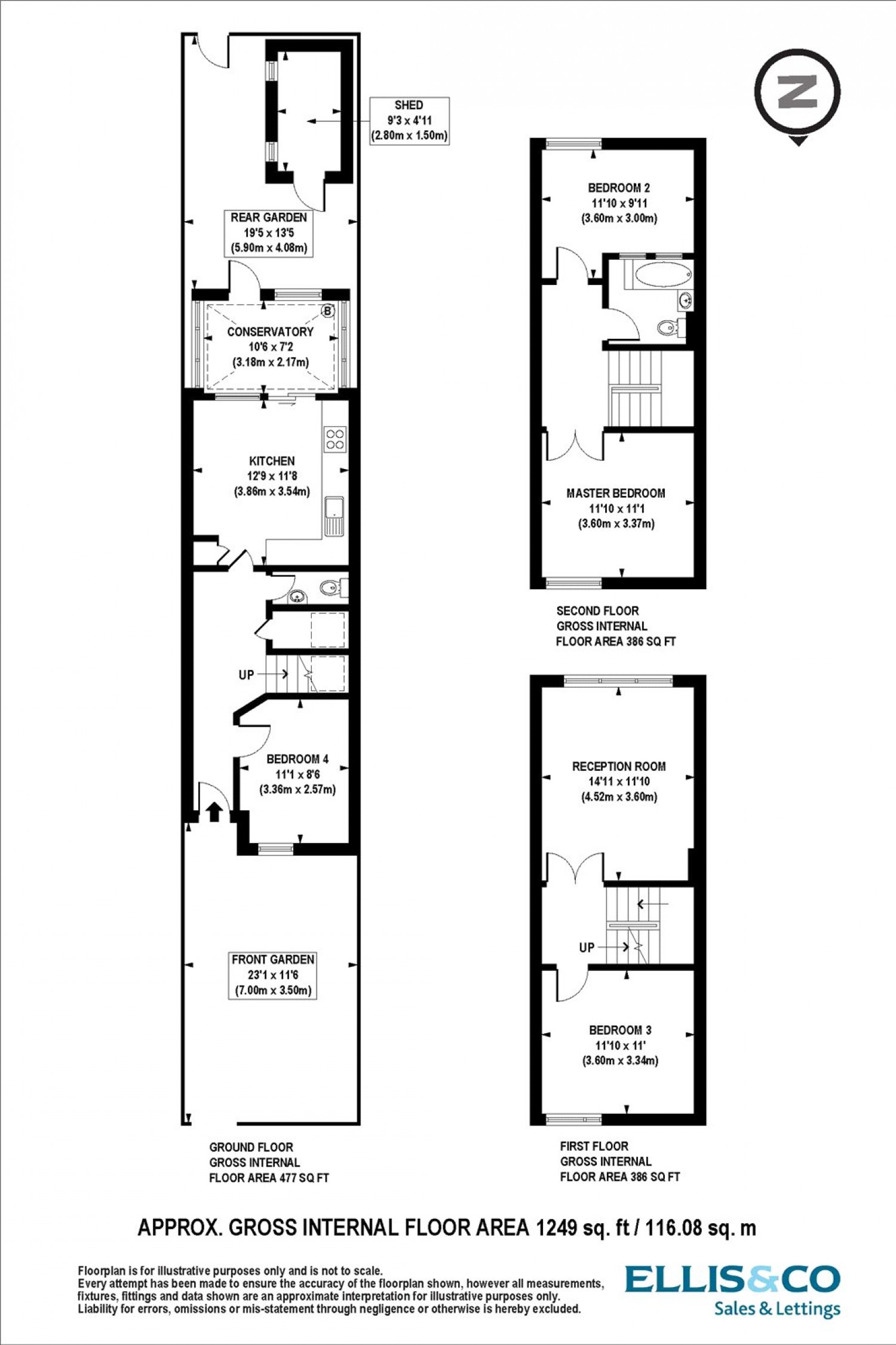
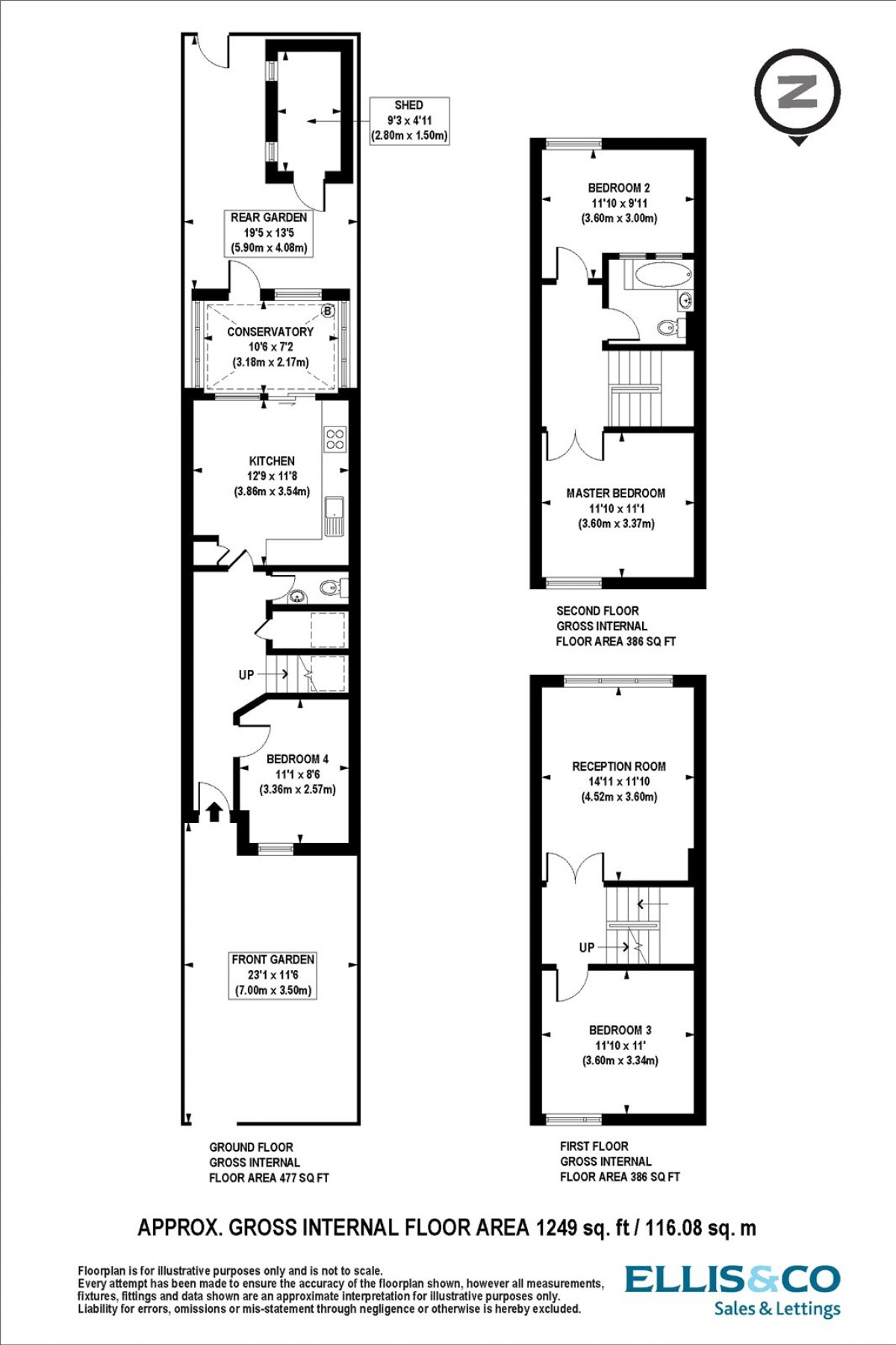
Set across three levels, this modern-style home provides an excellent opportunity for families, investors, or anyone seeking a property they can personalise. The front garden is neatly enclosed with raised beds and planters, giving the home a pleasant, green approach. Inside, the ground floor features a long entrance hallway with tiled flooring and access to a generously sized kitchen/diner, complete with ample storage units, worktop space, and room for a family dining table. Sliding doors open into a useful lean-to conservatory/storage room, which leads directly out to the private rear garden. The garden offers a paved area, mature trees, and a large wooden shed – ideal for storage, gardening, or creating an outdoor seating space. Across the upper floors, the property offers four well-proportioned bedrooms, each filled with natural light. The upper landing areas are bright and spacious, with wooden flooring and good scope for reconfiguration or updating to suit your needs. The bedrooms themselves include large windows, making the home feel airy throughout. This home would benefit from modernisation in places, making it ideal for buyers looking to add value and create a personalised contemporary living space. -Four-bedroom townhouse arranged over three floors -Large kitchen/diner with access to conservatory/utility area -Private rear garden with shed and gated access -Bright and spacious bedrooms -Front garden with raised planters -Excellent potential for refurbishment and value uplift -Situated in a quiet residential street close to local transport links, schools, parks, and amenities


Additional Information
Tenure:
Freehold
Council Tax Band:
D

Mortgage calculator

Calculate Your Stamp Duty
£
Results
Stamp Duty To Pay:
Effective Rate:
Tax Band % Taxable Sum Tax

Jarrow Road, London, N17

Struggling to find a property? Get in touch and we'll help you find your ideal property.