- Chain free sale
- Freehold semi-detached house
- Front driveway for off street parking for 3 - 4 cars
- West facing rear garden with large annex
- Spacious through lounge
- Good sized separate kitchen with gas hob
- 4 bedrooms
- 1 bathroom and separate WC
- Walking distance to Elizabeth Line and Southall Broadway
- Good conditon
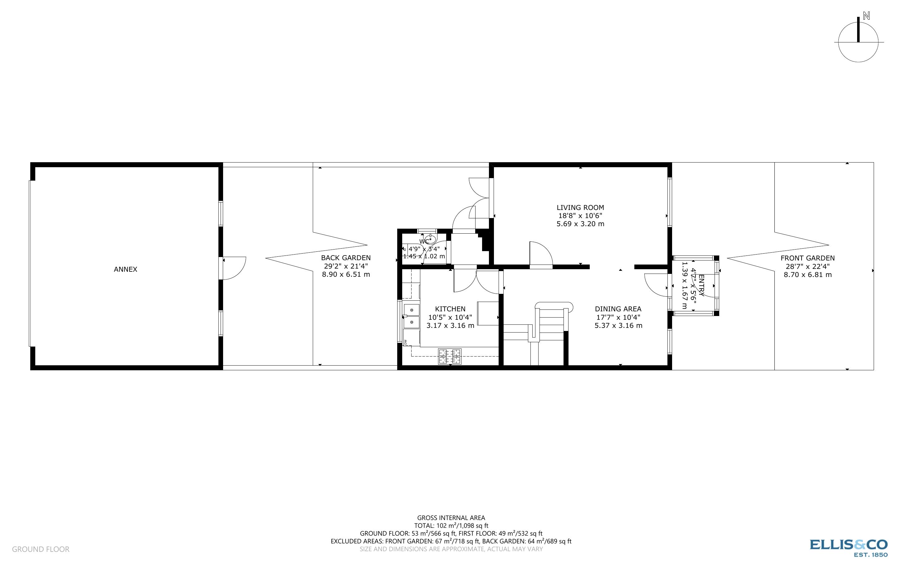
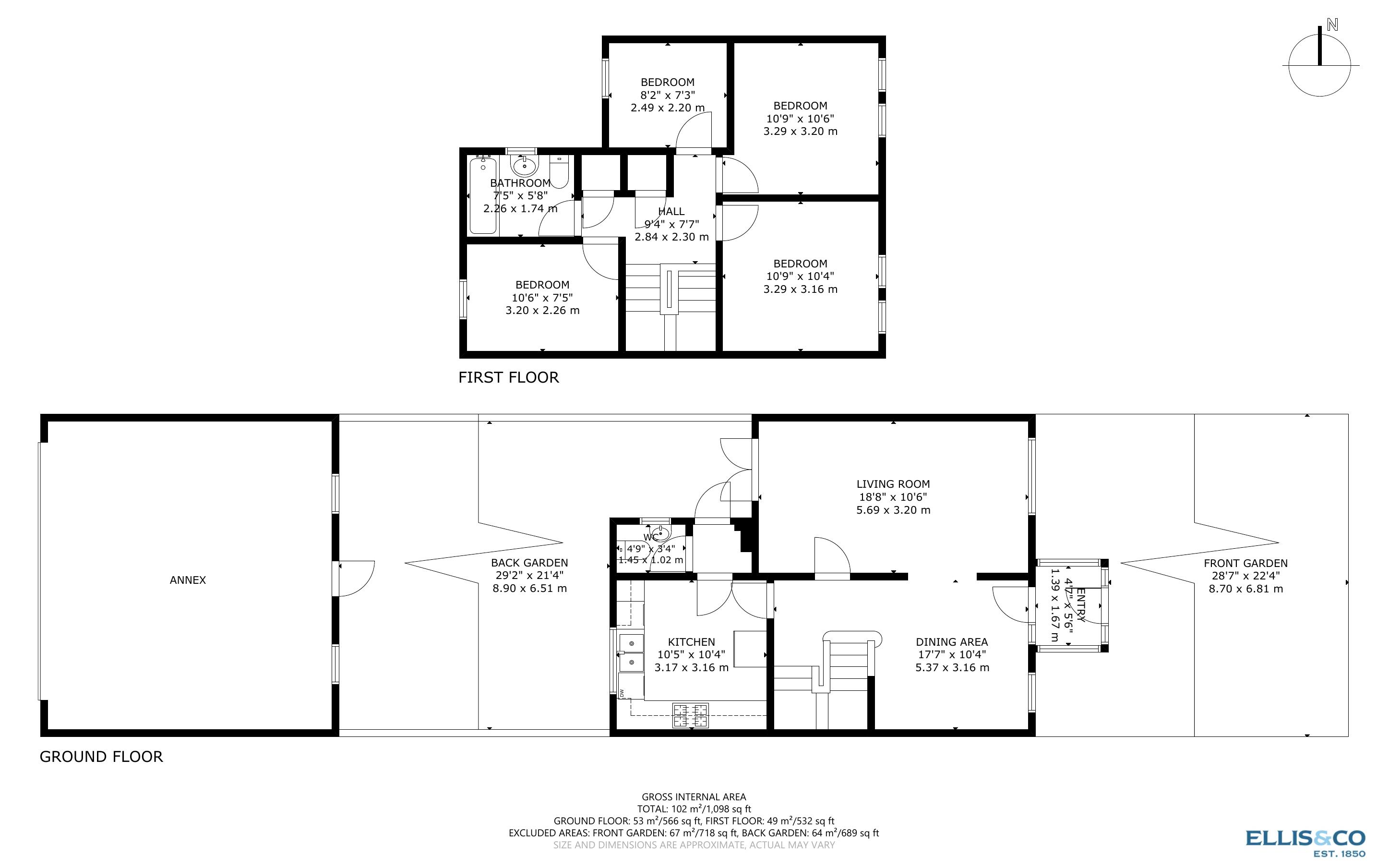
Measuring in at 1098 square feet internal area, Ellis & Co are pleased to offer this well presented semi-detached house for sale, located in a residential area of Southall, UB2. This freehold property benefits from a front driveway for off street parking for 3-4 cars, porch area, spacious through lounge, good sized separate kitchen with gas hob, family bathroom and separate WC, West facing rear garden with a large annex and side access, 4 bedrooms, combi boiler for gas central heating and double glazing throughout. Located within walking distance to Southall Station (Elizabeth Line) and Southall Broadway, as well as abundant bus links allowing easy access to the entirety of West London, Ealing Hospital and Heathrow Airport. In close proximity to a number of schools rated Outstanding by Ofsted, including Clifton Primary School and Villiers High School. The property is in good condition throughout and the sale is offered chain free, early viewings are highly recommended.
| Tax Band | % | Taxable Sum | Tax |
|---|
Struggling to find a property? Get in touch and we'll help you find your ideal property.